Comenzamos esta serie de entradas del blog con una doble intención: poner en valor el conjunto monumental de Santa Fe de Toledo y explicaros nuestro último trabajo, que es el resultado de un encargo por parte del actual director del Museo de Santa Cruz (Fernando Luis Fontes, a quien desde aquí agradecemos el confiar en nosotros) con el objetivo de dar luz, de forma gráfica, a uno de los bienes culturales más ricos y desconocidos de Toledo.
El pasado miércoles 27 de marzo de 2019 se inauguró, por fin, la Colección Roberto Polo, y lo hizo en una sede que en nada desmerece los Kandinsky o Delacroix que desde hace poco cuelgan en sus muros: el conjunto monumental de Santa Fe -al noroeste del Museo de Santa Cruz-, que había permanecido cerrado al público desde hace más de 50 años, cuando fue adquirido por el Estado y comenzó un largo periodo de abandono, restauración y rehabilitación.
Vamos a comenzar esta serie presentando una de las infografías más complejas que hemos llevado nunca a cabo y, con ella, la inmensa historia de este espacio toledano.

El maravilloso laberinto que da forma actualmente a este conjunto arquitectónico se debe a la superposición de ocupaciones que ha vivido la ciudad de Toledo y a ser un lugar especialmente destacado desde hace siglos (a pocos pasos de la famosa Plaza de Zocodover).
En él se entrecruzan restos islámicos con arquitectura medieval de los Caballeros Calatravos, todo ello engarzado por el edificio que la Orden de la Concepción Francisca y, posteriormente, las Comendadoras de Santiago, levantaron respetando algunos muros y modificando muchos otros, construyendo muchos nuevos espacios y destruyendo parte de los restos anteriores. Fue abandonado durante varias décadas tras la desamortización de 1855 y recuperado por la Comunidad de Ursulinas, que lo utilizarán hasta que el Gobierno lo compre en 1973.

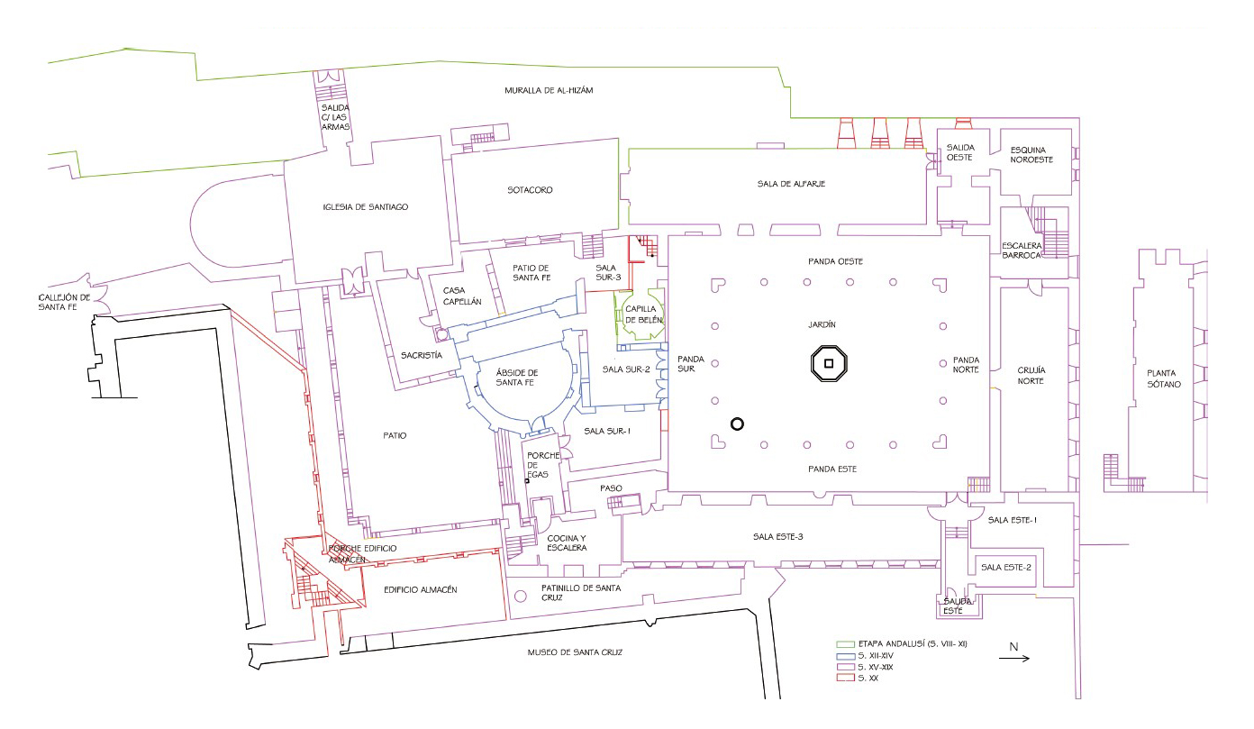
Aunque resultaría extremandamente largo y tedioso explicar aquí el devenir histórico al completo de este enclave, creemos necesario mostraros de forma concisa la evolución cronológica de la ocupación del conjunto de Santa Fe para que os podáis hacer una idea de la complejidad del edificio:
Como podéis suponer, el trabajo de reconstrucción virtual ha sido un auténtico reto dada la complejidad de este conjunto monumental, su evolución orgánica y poco regular en torno a edificios preexistentes y la necesidad de mostrar muchos espacios de gran importancia mediante secciones combinadas sobre el modelo 3D.

Además del uso de múltiples planimetrías de foma combinada, hemos trabajado en colaboración con Virtua Nostrum para realizar decenas de modelos 3D fotogramétricos de los elementos más importantes y, de ese modo, poder cuadrar mucho mejor volúmenes, alturas, plantas y, en definitiva, las formas tan complejas de este espacio de Toledo. En total, utilizamos 18 modelos 3D fotogramétricos, llevados a cabo tanto con fotogrametría aérea como terrestre, que luego optimizamos e incorporamos a la reconstrucción virtual.
Los modelos 3D fotogramétricos fueron llevados a cabo con Agisoft Metashape y con Reality Capture mientras que todo el proceso de montaje de los mismos junto con las planimetrías, los volúmenes básicos y la reconstrucción virtual se llevó a cabo en Blender.


Después de la importantísima fase de documentación gráfica nos ocupamos del proceso de planteamiento de la reconstrucción en volúmenes básicos que nos permiten ir cuadrando el punto de vista final de la infografía y, en definitiva, la apariencia que tendrá la misma, así como la disposición de las secciones. Este proceso es fundamental si queremos optimizar nuestro trabajo y llegar a tiempo a la entrega en unos plazos que, generalmente, no suelen ser muy generosos.

Una vez está consensuada la vista definitiva de la reconstrucción virtual, así como las secciones que van a llevarse a cabo en cada una de las zonas, comenzamos a diseñar los modelos definitivos, área por área -en este caso desde la zona norte a la zona sur del complejo- y, poco a poco, los texturizamos, intentando mantener siempre una coherencia con los modelos 3D fotogramétricos documentados, a partir de fotografías del edificio o de texturas similares.

Tras la creación del renderizado, con Blender Cycles, y un postproceso en Photoshop para añadir pequeños detalles o perfilar posibles errores, obtenemos el resultado final que, bajo estas líneas, hemos acompañado con indicaciones de cada uno de los espacios del conjunto monumental que pueden observarse en él.

Esta infografía, acompañada del texto explicativo, puede observarse actualmente en varios de los paneles que forman parte de la musealización del conjunto.
En las próximas entradas de esta serie os seguiremos explicando el resto del trabajo: qué fases históricas de este mismo complejo hemos reconstruido y cómo lo hemos hecho, hablaremos también de la reconstrucción virtual en detalle de la Capilla de Belén así como de la recreación de la espectacular arquería taifa o de los restos islámicos conservados en la Sala del Alfarje.
¡Gracias por leernos! 😀